La Administración del Hospital Cuenca Alta Samic de Cañuelas llamó a licitación pública para la construcción de una “Casa de Acompañantes” destinada, principalmente, al alojamiento de madres que tienen bebés internados en el sector de neonatología.
De acuerdo a los detalles de la licitación pública número 38/2026, divulgada esta semana en el Boletín Oficial, no se hará una obra totalmente nueva, sino que se “adaptará y desfuncionalizará” una construcción licitada en 2023 con destino a un Centro de Día de Salud Mental, nunca concluido por falta de fondos.
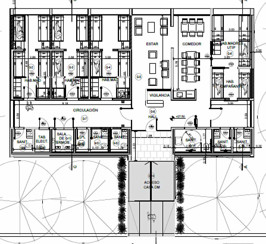
El nuevo pabellón, ubicado en un espacio independiente del predio hospitalario, frente al sector de emergencias, tendrá una superficie de aproximadamente 220 m2. Contará con cuatro habitaciones para madres, una para acompañantes, baños con seis inodoros (uno para discapacitados), tres boxes de ducha, comedor y sala de estar, con capacidad total para unas 16 personas.
“El sector de neo se fue ampliando y por eso se necesita un lugar cómodo para que las madres puedan alojarse”, dijo a InfoCañuelas un profesional del nosocomio.
Según la licitación, la apertura de ofertas estaba programada para el 29 de abril a las 11. Pero en las últimas horas se informó que esa fecha fue suspendida hasta nuevo aviso.
InfoCañuelas intentó comunicarse con algunos miembros del Consejo de Administración para preguntar los motivos de este cambio de proyecto y si el centro de salud mental fue definitivamente desechado, pero no hubo respuesta.
Escrito por: Redacción InfoCañuelas
